医疗制药纯化水系统设计与工艺流程要点解析
一、纯化水系统关键要点
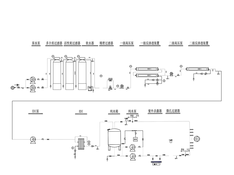
1.原水进入RO膜,需进行预处理
渗源纯化水系统的RO系统由保安过滤器(有效防止水中的颗粒物容易划伤RO膜表面,预防RO膜堵塞或穿孔)、阻垢剂单元(阻止钙镁离子容易对RO膜表面过快结垢)、一级高压泵、一级反渗透装置、中间水箱、二级高压泵、二级反渗透装置、纯化水储罐,及所需配备的检测仪表和管路组成。
2.消毒方式的选择
渗源纯化水系统对活性炭定期巴氏消毒(自动控制温度),亦可对管道及纯化罐巴氏消毒,防止微生物滋生。
3.采用水循环系统设计
渗源纯化水系统采用自动水循环系统:由纯化水储罐的液位来控制水机的工作状态,RO装置带有自循环管路,在储罐液位满,不需进水时,设备自动切换至循环运行状态,保证系统内水始终处于流动状态防止纯化水静产出不良水质。
4.管道材质的选择
渗源纯化水系统针对医疗制药用水设备对于管道材质的严格要求。根据我国GMP规定,纯化水储罐和输送管道所用材料应当无毒、耐腐蚀、不脱落。渗源采用SUS304不锈钢及SUS316L不锈钢管材。
5.自动化控制系统
渗源纯化水系统整机配有中央控制系统和彩色液晶触摸屏。可密码登陆后进行各项参数设定,在线显示电导率、温度、压力等数据,出现异常自动报警,系统日志自动保存可供查询,实现纯化水制备过程的全自动操作控制和监控。
6.阀门设计
渗源纯化水系统在多介质过滤前后、供水管入口、循环泵后、换热器后、各个RO后及并流出、回水口等管道处都设置取样阀,阀门和连接的密封材料使用PTFE或是EPDM材料,保安过滤器以后的阀门采用卫生型隔膜阀。
7.焊接工艺
渗源纯化水系统采用纯度99.99%氩气焊接,且管道焊口做焊后酸洗钝化处理。
二、渗源纯化水系统工艺流程:

